Beschrijving

Te Koop aangeboden. Een recreatiebungalow met tuin en terras, deze woning zal worden verkocht met volledig aanwezige inventaris. , op een royaal kavel van 414 m2. eigen grond. Gelegen aan het binnenmeer van Parc Emslandermeer een Parc met alle voor- zieningen o.a. overdekt zwembad, golfbanen en restaurant.

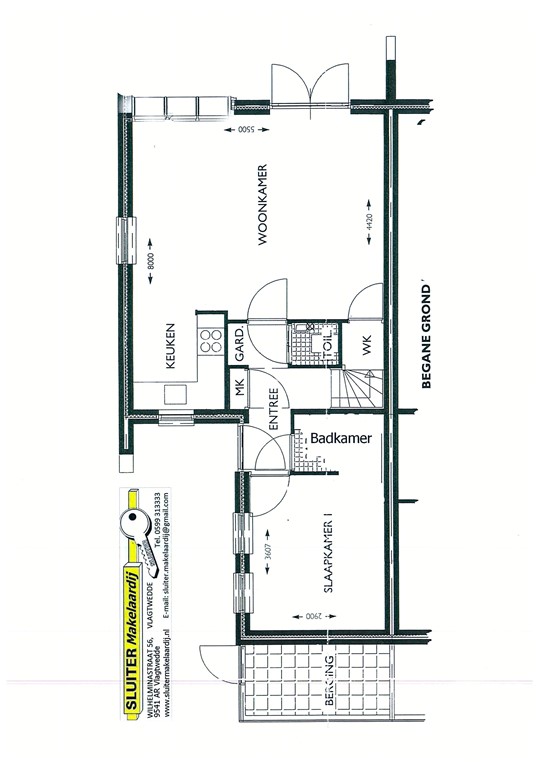
Begane grond: entree met vaste trap naar de verdieping, woonkamer met Plavuizen vloer en tuindeuren naar het terras, tuinkamer, half- openkeuken v.v. alle gemakken, badkamer, toilet, slaapkamer en berging/bijkeuken.

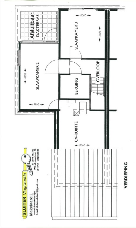
Verdieping: overloop met 2 slaapkamers waarvan een met balkon, 2e badkamer met douche v.w.t. en 2e toilet, zolder/berging cv ruim- te. Tevens is er op de verdieping een wasmachine aansluiting

Alg. Info: De woning is gelegen aan het water met vrij uitzicht, dit geheel kan voor eigengebruik en/of verhuur.
Hiervoor zijn er uitstekende voorwaarden.
Dit geheel is v.v. centrale verwarming en dubbele beglazing.
Bezichtigingen uitsluiten via de betrokken makelaar!
Aanvaarden in overleg	Opp. 414 m2

Bieden vanaf: € 122.000,= k.k.  Postcode 9541 LJ
Aan vermelde gegevens kunnen geen rechten worden ontleend


===================
Zu Verkaufen
Dieser Ferienbungalow mit Garten und Terrasse wird komplett mit Inventar auf einem großzügigen 414 m² großen Grundstück verkauft. Das Objekt liegt am Binnensee des Parc Emslandermeer, einem Park mit allen Annehmlichkeiten, darunter ein Hallenbad, Golfplätze und ein Restaurant.

Erdgeschoss: Eingang mit Treppe zum ersten Stock, Wohnzimmer mit Fliesenboden und Glastüren zur Terrasse, Gartenzimmer, halboffene Küche mit allen Annehmlichkeiten, Bad, WC, Schlafzimmer und Abstell-/Hauswirtschaftsraum.

Erster Stock: Flur mit zwei Schlafzimmern, eines davon mit Balkon, einem zweiten Bad mit Dusche und einem zweiten WC, Dachboden/Abstellraum und Zentralheizungsraum. Im ersten Stock befindet sich außerdem ein Waschmaschinenanschluss.

Allgemeine Informationen: Das Haus liegt direkt am Wasser mit unverbaubarer Aussicht. Diese Immobilie eignet sich zur privaten Nutzung und/oder Vermietung.
Es gelten hervorragende Konditionen.

Die Immobilie ist mit Zentralheizung und Doppelverglasung ausgestattet. Besichtigungen sind nur über den zuständigen Immobilienmakler möglich!
Zuschlag nach Absprache. Fläche: 414 m²

Gebote ab: 122.000 € (Kosten für Käufer). Postleitzahl: 9541 LJ

Aus den bereitgestellten Informationen können keine Rechte abgeleitet werden.

Kenmerken